Comment dessiner une pièce - dimensions, croquis et conseils pour les débutants
En ces jours de haute technologie, nous avons tous accès à des professionnels, des designers, des artistes qui peuvent nous faire un projet de design de notre appartement ou de notre chambre. Mais chacun d'entre nous s'est peut-être déjà demandé comment dessiner de ses propres mains une pièce avec des meubles.

Avons-nous besoin de compétences professionnelles pour le faire, devons-nous étudier pendant plusieurs années à l'université ou pouvons-nous le faire nous-mêmes en une heure de temps libre ?

Pour dessiner une pièce de manière professionnelle, vous devez connaître les bases de la perspective. Dans cet article, nous allons donc voir comment dessiner rapidement une pièce en trois dimensions avec quelques lignes.

Bien sûr, il ne s'agira pas d'un projet de conception professionnelle avec des dimensions calculées et des matériaux de construction spécifiques, mais ce sera la version que vous imaginez et voyez dans votre tête.

Dessiner une pièce en projection avant
Avant d'effectuer le travail, vous devez décider s'il s'agira d'une vue de dessus ou d'une vue "en ligne droite" de la pièce, comme si vous vous y trouviez et que vous voyiez les meubles devant vos yeux. Commençons par une projection directe. Si vous étiez dans la pièce, comment la verriez-vous ?

De quoi aurait-on besoin pour dessiner une pièce ?
- Papier blanc A4 ou A3 (à votre choix) ;
- Un crayon H et B (solide et souple) ;
- Gomme.
- Votre patience, bien sûr.

Projection par étapes
- Marquez d'abord la ligne d'horizon près du centre de la feuille. Il est préférable de dessiner sur une feuille de papier horizontale.
- L'étape suivante consiste à dessiner le point de fuite. Il est situé sur la ligne horizontale à l'endroit où se trouve l'angle prévu de la pièce.
- Il faut ensuite tracer 4 lignes d'intersection entre les coins de la feuille et le point de fuite. Selon l'emplacement du point de fuite, ils peuvent se croiser. Il s'agira de lignes auxiliaires qui permettront de projeter correctement les objets dans la pièce.
- Utilisez ensuite des lignes horizontales et verticales pour dessiner l'emplacement des murs et du sol dans la pièce. Tracez une ligne horizontale droite en bas, là où vous souhaitez que la pièce se termine. Tracez également des lignes verticales à gauche et à droite pour marquer les murs sur les côtés. Faites de même avec le plafond au-dessus : tracez une ligne horizontale et dessinez des lignes sur les côtés. Pour ce faire, on dessine des lignes auxiliaires et on s'appuie sur elles. Au milieu de la feuille, vous devriez obtenir un rectangle représentant le mur. Les côtés doivent également être capables de lire les murs à partir des contours.

Dessiner les détails de la pièce
Lorsque vous avez fini de dessiner la construction de la pièce, vous devez commencer à la meubler. Ici, nous sommes entièrement guidés par notre imagination. À ce stade, nous allons déterminer comment dessiner la conception de la pièce.

L'étape suivante est la fenêtre. Si vous le voulez dans la pièce, bien sûr, ou plusieurs fenêtres. Tracez des lignes perpendiculaires aux lignes horizontales à angle droit. Utilisez-les pour tracer un rectangle qui représentera la fenêtre.

Vous pouvez ensuite dessiner le cadre et le rebord de la fenêtre de manière plus détaillée. Si vous dessinez le rebord de la fenêtre, les lignes latérales qui le marquent doivent être parallèles aux lignes initialement tracées et se croiser au point de fuite. La même technique peut être utilisée pour dessiner les fenêtres des côtés gauche et droit. Des lignes auxiliaires doivent être utilisées pour que la perspective des objets ne change pas.

Vous pouvez dessiner des luminaires au plafond ou sur les murs latéraux. Ensuite, vous pouvez marquer le parquet, le linoléum, la moquette au sol ou le papier peint. Mais tout doit être marqué par des lignes fines afin que ces détails ne surchargent pas l'image et n'attirent pas l'attention plus que les principaux éléments du mobilier.

Le placement des meubles dépend de la taille de la pièce et de sa destination : cuisine, chambre, hall ou chambre d'enfant. Dessiner en fonction des lignes auxiliaires qui sont initialement dessinées. Construisez les meubles en fonction de la direction de ces lignes.

Par exemple, s'il s'agit d'un lit, il est préférable de le placer au centre ou contre un mur. Tracez d'abord une ligne droite pour la boîte. Ensuite, vous devriez ajouter quelques éléments décoratifs supplémentaires (coussins, plaids).

Quelle est la règle principale pour dessiner une pièce
Il convient de rappeler que tous les éléments sont constitués de formes géométriques. Ils sont donc créés à l'aide d'un crayon et d'une règle, et sont accessibles à tous, même à ceux qui ne savent pas dessiner.

L'essentiel est d'utiliser des lignes auxiliaires et de tracer les lignes de guidage des meubles parallèlement à celles-ci et les lignes horizontales parallèlement à l'horizon, alors la projection sera parfaite et tous les objets auront l'air réalistes.

Dessiner les petits détails
De cette façon, les formes de base de la pièce sont dessinées : canapé, lit, table, armoire, table de chevet, fauteuil et ainsi de suite. Après avoir dessiné les meubles, il convient d'esquisser le décor - rideaux, nappe, lampadaires sur la table de chevet ou le bureau, fleurs, posters sur le mur ou tableaux -.

Tout est dessiné de manière schématique, il n'est donc pas nécessaire de s'attarder sur les moindres détails. Il s'agit davantage d'un dessin géométrique que d'un dessin créatif. Une fois encore, il convient de rappeler que tout dépend de votre imagination et des objectifs que vous poursuivez. Mais bien sûr, si les éléments de décoration jouent un rôle majeur en fonction du style de l'intérieur, alors vous devez y prêter attention.

Sur la base des étapes précédentes, vous pouvez comprendre comment dessiner la salle de bains, elle sera plus petite et le mobilier sera particulier - baignoire elle-même ou douche (dessinée comme une forme géométrique, puis coins arrondis et détails tracés), lavabo, machine à laver et ainsi de suite.

En observant l'ordre des opérations, vous pouvez dépeindre n'importe quelle pièce. Pour vous aider, vous pouvez prendre des images de pièces ou de meubles. Après avoir tracé les contours de tous les éléments de mobilier et de décoration, il faut effacer toutes les lignes auxiliaires avec une gomme et sélectionner les éléments principaux du dessin avec un crayon doux marqué B.

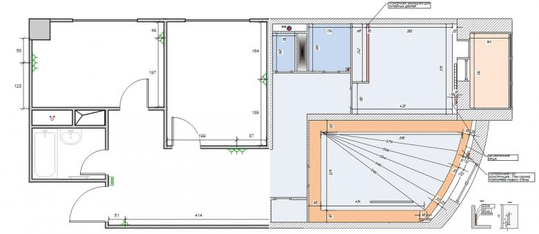
Comment dessiner un plan de pièce
Il peut être préférable pour certaines personnes de voir la disposition des meubles en vue de dessus, ou cela peut être nécessaire à des fins spécifiques, par exemple pour les constructeurs qui effectueront la rénovation. Par conséquent, voyons brièvement comment vous pouvez dessiner la vue d'en haut.

C'est encore plus facile à faire. qu'il ne l'est de dessiner une projection directe de la pièce. Parce que seules des formes géométriques droites sont utilisées. La première chose à faire est de choisir l'échelle du dessin. Par exemple, 1 cm est égal à 1 mètre. Ainsi, si vous dessinez votre chambre, vous devez d'abord mesurer les murs, les portes et les meubles, puis vous mettre au travail.

Sur la base de ces dimensions, dessinez les murs, l'emplacement de la porte et de la fenêtre. La pièce ressemblera à un rectangle ou à un carré ordinaire sur ce plan, et vous pouvez même esquisser la largeur des murs.

Les meubles sont également dessinés à l'aide de formes géométriques. Les meubles peuvent être esquissés avec des éléments décoratifs, mais ne vous emballez pas pour autant, car le plan concerne principalement la taille et le positionnement des meubles.

Nous espérons que ce matériel vous aidera à réaliser vos rêves. La conception visuelle du logement ou de l'espace de travail créée dans le dessin deviendra une réalité.
































